1928 Home Road NW

RLAND For Sale in Montgomery, Calgary NW

$1,099,000
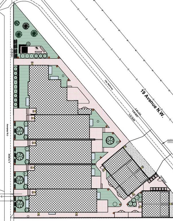
OVER 10,000 SQFT LOT! DP IN PLACE!! READY TO BUILD! LUXURY TOWNHOMES PERFECT FOR SEPERATE TITLED SALES! (Potentially 2 additional adjacent 50x120ft lots available should you be looking for even more development land!) Exceptional development opportunity in the heart of Montgomery! Situated on a massive corner lot, this property comes with development permits already in place for five executive townhomes, each featuring its own legal suite, plus a total of 5 garages. With professionally designed plans by one of Calgary’s top designers, this is a turnkey, ready-to-break-ground project—and not your typical small-scale townhome development. The thoughtfully designed site also includes ample green space for residents, enhancing livability and long-term appeal. Ideally located close to numerous amenities, public transit, the University of Calgary, and the Foothills Hospital, this site also offers quick access to major roadways and an easy escape to the mountains. Montgomery continues to be one of Calgary’s most sought-after inner-city communities, making this an excellent opportunity for builders and investors alike. Perfect for rental income, MLI select, or resale, this is a rare chance to secure a premium development on a standout lot in a prime location.
Address
1928 Home Road NW
List Price
$1,099,000
Property Type
Land
Type of Dwelling
RLAND
Transaction Type
Sale
Area
Calgary NW
Sub-Area
Montgomery
Lot Size
10441 Sq. Ft.
MLS® Number
A2295227
Listing Brokerage
The Real Estate District
Postal Code
T1X 0Y4
Zoning
R-CG
Site Influences
Back Lane

Request More Info or a Showing

Adil Thobani

Phone: 403-861-5656

adil@adilthobani.com

#401 1550 5 St SW Calgary Alberta T2R 1K3